Raro por Natureza
Terrare Moema
O Terrare Moema é um empreendimento residencial implantado em um terreno de 6.289 m², localizado na Alameda dos Nhambiquaras, 393, em Moema, um dos bairros mais consolidados e valorizados da zona sul de São Paulo. Inserido em um complexo composto por três torres, o projeto residencial ocupa a Torre C e apresenta uma configuração vertical com 29 pavimentos, integrando áreas técnicas no subsolo, lazer distribuído no térreo, no 1º andar e na cobertura, além de unidades residenciais compactas voltadas a um público urbano e investidor.
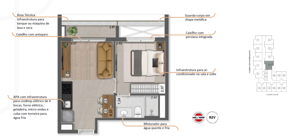
Com 482 unidades, o Terrare Moema oferece apartamentos de 1 dormitório com metragens de 33 m² e 33,75 m², além de studios entre 20,50 m² e 21,35 m², enquadrados nas modalidades HMP, HIS e R2V-4. As plantas foram concebidas com racionalidade espacial e infraestrutura completa, incluindo terraço com porcelanato, guarda-corpo metálico, previsão para máquina lava e seca, infraestrutura para ar-condicionado tipo split na sala e no dormitório, aquecimento central com água quente em lavatórios e chuveiros, ponto elétrico para cooktop (2 bocas nos studios e 4 bocas nas unidades de 1 dormitório) e ausência de ponto de gás, reforçando a proposta elétrica do empreendimento. O sistema construtivo é convencional, com estrutura em concreto, vedação em blocos e paredes internas em drywall, lajes de 12 cm e pé-direito piso a piso de 2,72 m.
A área comum foi planejada para atender à dinâmica contemporânea de moradia compacta, oferecendo acesso com clausura, lobby, central delivery e bicicletário equipado com bancada de manutenção e ponto para recarga de bicicletas elétricas. No 1º andar, o lazer contempla lounge, coworking com sala de reunião, espaço para mini-market, pub com jogos, lavanderia coletiva, salão de festas e churrasqueira. Na cobertura, o 27º pavimento concentra o lazer panorâmico, com lounge, fitness com consultoria especializada, solário e piscina descoberta climatizada com prainha. As áreas comuns serão entregues mobiliadas e equipadas conforme memorial descritivo, com ar-condicionado instalado em ambientes estratégicos e infraestrutura para Wi-Fi e sistema de CFTV. O empreendimento conta ainda com gerador para atendimento emergencial de elevadores e sistemas essenciais.

Diferenciais do empreendimento
Conforto e infraestrutura
Áreas Comuns
Alameda dos Nhambiquaras, 393
A região é marcada por ruas arborizadas, infraestrutura completa de serviços e uma ampla oferta de comércio, escolas renomadas, hospitais de referência e opções de lazer. Em poucos minutos, é possível chegar ao Parque Ibirapuera, ao MASP, ao Itaú Cultural, à Japan House e a restaurantes premiados, além de estar muito próximo a estações de metrô como Paraíso e Brigadeiro, que garantem mobilidade prática para toda a cidade.
Endereço
Alameda dos Nhambiquaras, 393
São Paulo, BR
Tarrare Moema
© 2026 Terrare Moema